A persistent developer has appealed against Waverley Borough Council’s refusal of planning permission for 131 homes on countryside between Farnham and Aldershot – just weeks after applying for a further 61 homes on an adjacent site.
Lamron Developments saw its outline application for the homes east of Green Lane in Weybourne shot down by Waverley planners on May 30 last year, on the grounds they would harm the “intrinsic character and beauty of the countryside”, in conflict with the Farnham Neighbourhood Plan and borough Local Plan.
The Planning Inspector will open a hearing to determine the appeal on April 19.
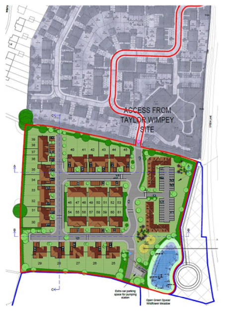
It comes as objections mount against Lamron's plans for another 61 new homes in the ‘strategic gap’ between Farnham and Aldershot, again in direct conflict with the Farnham Neighbourhood Plan.

The development, proposed in Green Lane opposite Taylor Wimpey’s 105-home estate, has already received 35 written objections by the public since being validated by Waverley Borough Council on January 24.
Residents have expressed their concern over the impacts the new homes would have on the local infrastructure, wildlife, traffic and shortage of public services.
One of the objectors, Kate Austin of Weybourne Lane, said the field in question was a wildlife haven and crossed by a public right of way. She also pointed out the local road network was already at a standstill during peak hours because of the traffic from schools, and the additional vehicles from the new development would only make the situation worse.
John Gaskell, of Bartlett Avenue, argued the development would change the nature of the footpath from a “pleasant country path to an urban alley” and would further close the green gap between Farnham and Aldershot.

Another objector, Steven Hudson, of Badshot Park, expressed his concern that too much development was already taking place in Badshot Lea, “which is supposed to be a green area”.
Shirley George, of Courtenay Road, stressed the need to protect the green space and wildlife in Weybourne, which she said was already facing flooding problems. Marketa Porter, who lives in Lower Weybourne Lane, also expressed her opposition to the development on the grounds of shortage of public services, congested traffic and impact on wildlife.
The site, approximately six acres in size, is predominantly grassland and scrub and of “moderate” archaeological potential for prehistoric remains.
The application to Waverley seeks to establish the principle of development on the site and its access, with detailed design and other matters to be agreed at a later date.
The proposed development will consist of four one-bed flats, eight two-bed flats, 20 two-bed houses, seven three-bed houses, and four four-bed houses – including 18 ‘affordable’ homes.
View and comment on the plans (WA/2023/00169) before the February 24 deadline here.





Comments
This article has no comments yet. Be the first to leave a comment.